mateiral bank 由来図(2025)

ミックスメディア/インクペン、鉛筆、photoshop、illustlator/ 840×279(2025)

Network cultivator 由来図(2025)

ミックスメディア/インクペン、鉛筆、photoshop、illustlator/ 840×279(2025)

Interactive kiosk 平面図(2022)

ケント紙/インクペン、鉛筆、photoshop/ scale1/5 1189×420 (2022)

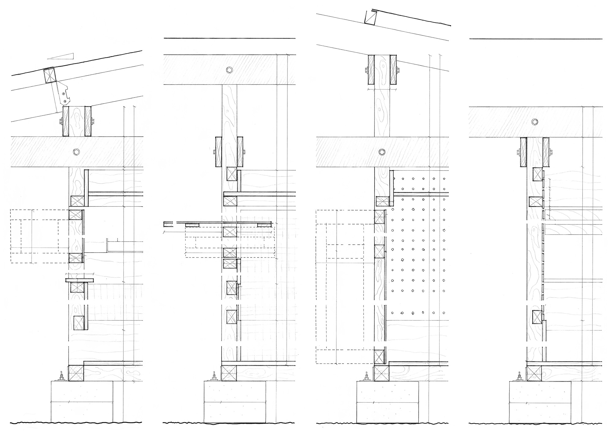
Interactive kiosk 四面断面図(2022)

ケント紙/インクペン、鉛筆、photoshop/ scale1/5 594×420 (2022)

Interactive kiosk 回転軸詳細図(2022)

ケント紙/インクペン、鉛筆、photoshop/ scale1/5 594×420 (2022)

Triboard 断面パース

ミックスメディア/autocad、rhinoceros、photoshop、レンダリングソフト (2023)

Architecture into the circulation of tree industry 断面パース

ミックスメディア/autocad、rhinoceros、photoshop、レンダリングソフト (2023)

囲い重ね~屋敷林のある暮らし 平面図

ミックスメディア/autocad、rhinoceros、photoshop、鉛筆 (2023)

インスタ映えする上野公園の桜 フレーミング回数とその範囲

ミックスメディア/鉛筆で記録のちにphotoshop加工 (2022)

Last time walk with you スケッチとスタディ図面

クラフト紙/鉛筆、インクペン、パステル、色鉛筆/ 200,000×1000 (2021)

Last time walk with you シークエンス断面図

ミックスメディア/autocad、rhinoceros、photoshop、鉛筆 (2021)

月島考現学 ~路地におけるモノの採集~

ミックスメディア/illustlator、photoshop、鉛筆 (2020)

小津安二郎美術館 断面パース・断面詳細図

ミックスメディア/illustlator、photoshop、autocad (2020)

四方が共用部~四重螺旋による集合住宅の在り方~ 平面パース

ミックスメディア/illustlator、photoshop、autocad (2020)

互恵~地球を耕す暮らし~ 断面パース

ミックスメディア/illustlator、photoshop、autocad (2020)